現地案内をいつでも受け付けております。詳しくはお気軽にご連絡ください。ハチス住研

中古別荘 物件№ C2530 那須・バケイションランド 仲介

  
所 在: 那須郡那須町大字高久丙
価 格: 790万円
土 地: 土地面積/400㎡(121.00坪)
私道負担面積/約35㎡
建 物:新築年月/平成9年6月
建物面積/86.86㎡(26.27坪)
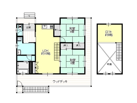
間取り/2LDK+ロフト付
(LDK約15、和室約8、和室約8、ロフト約6)
設 備: 水道/私設 汚水・排水/宅地内処理
環 境: 別荘地「バケイションランド」内
区画数3,270、那須でも有数の大型別荘地
別荘地入口には管理事務所があり、警備員の常駐により安心・安全の管理体制
別荘地内に公園や散策道などがあり、有意義な那須の暮らしをサポート
ドクターヘリや災害救助のためにヘリポートも完備
比較的積雪も少なく、近年定住者も増加し、活気ある別荘地
標高は600m前後
別荘地管理規程により民泊使用不可
特 徴: 平成9年築の2LDK+ロフト付き
16.5帖の大型ウッドデッキ(屋根付)
ロフトは天井が高くテレワークルームとしても使用可能です
浴室、洗面所リフォーム済み
ウッドデッキは屋根が付いていて雨天時でもBBQやランチが楽しめます
土地面積も広く駐車スペースの拡張も可能です(現況1台分)