現地案内をいつでも受け付けております。詳しくはお気軽にご連絡ください。ハチス住研

中古別荘 物件№ C2534 那須・那須上の原高原別荘地 仲介

  
所 在: 那須郡那須町大字高久乙
価 格: 980万円
土 地: 土地面積/745㎡(225.36坪)
私道負担面積/なし
建 物:新築年月/平成1年1月
建物面積/89.43㎡(27.05坪)
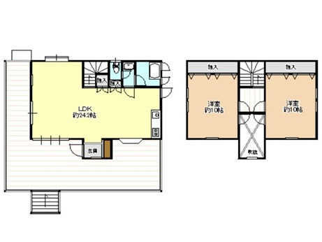
間取り/2LDK(LDK約24.2、洋10×2)
設 備: 水道/私設 汚水・排水/宅地内処理
環 境: 別荘地「那須上の原高原別荘地」内
標高約700mに位置した「那須ハイランドパーク」近接の別荘地。綺麗に区割・管理された別荘地内にはレストランやコテージ、テニスコートやドックラン等があり施設が充実しています。
特 徴: ■リビング24帖超の2LDK
■28帖の大型ウッドデッキで家族や友人とBBQパーティーが可能
■土地面積225坪超の平坦地
■平坦地につき庭はドックランや家庭菜園に的しています
※建物未登記