現地案内をいつでも受け付けております。詳しくはお気軽にご連絡ください。ハチス住研

新築建売 物件№ s2508 (那須塩原・下厚崎・3棟現場) 仲介
所 在: 那須塩原市下厚崎
価 格: 1号棟 1,880万円
2号棟 1,980万円
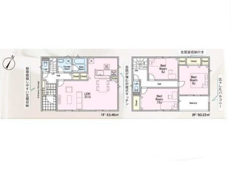
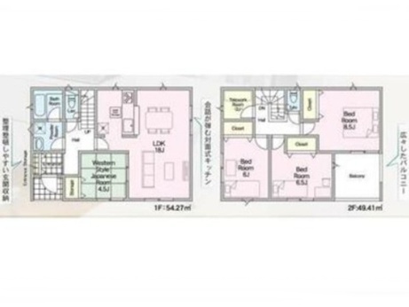
面 積: 1号棟 土地/201.99㎡(61.10坪)
    建物/103.68㎡(31.36坪)
2号棟 土地/268.17㎡(81.12坪)
    建物/103.68㎡(31.36坪)
設 備: 水道/公営 汚水・排水/公共下水
建 物: 令和月7年12月完成
木造アスファルトシングル葺2階建
3LDK・4LDK
浄水器一体型システムキッチン、浴室暖房乾燥機付ユニットバス、シャワー付洗面化粧台、温水洗浄便座、TVモニターホン、ペアガラス、ルーフバルコニー、郵便受け
学 区: 共英原小学校(約1.0km)
厚崎中学校(約1.4km)
生活施設: セブンイレブンまで約0.2km
カインズホームまで0.9km
業務用スーパーまで約1.2km
菅間記念病院まで1.8km
備 考: ■3LDK~4SLDK、新築分譲住宅
■現金10万円、AC1台プレゼント
■子育てグリーン住宅支援事業対象物件(諸条件あり)
■全棟リビング18帖以上・カウンターキッチン
1号棟:土地約61坪 2階建4LDK リビング18帖、テレワークルーム2帖
2号棟:土地約81坪 2階建3LDK リビング21.7帖、寝室8帖